厦门 中考各校 投档线
定了!启悟中学将更名为:同安实验中学!今秋要招600名普高生…
厦门市启悟中学2015届高三期中考试化学试卷
强寒潮来袭,省教育厅发布重要通知 之江一中加入杭二中教育集团,之江实验中学 之江一中新校舍正式启用
广西新增4所自治区示范性普通高中 6所星级特色普通高中
惊呆 厦门又多了这些你买不起但 看得起 的豪宅
忆历史 悟 红色 启新生 茅盾中学第二十七期团校第一讲
第18期 永安一中教师参加 永安市中小学学科带头人培养对象中学访学 第四期 学习感悟一一厦门双十中学篇
再见2020 你好2021 公布 2020年学校主题班会课评比结果
把握新高考脉搏--厦门市启悟中学教师职业规划应对策略讲座
第20期 永安一中教师参加 永安市中小学学科带头人培养对象中学访学 第四期 学习感悟一一厦门五中篇
启悟中学2011级初一6班 - 班级圈圈 - 成员 - 文明小博客 - 厦门网
圆梦助考 中国百强中学之郑州市第一中学
启悟中学2011级初一1班 - 班级圈圈 - 成员 - 文明小博客 - 厦门网
启悟中学2010级初二(3)班 - 班级圈圈 - 成员 - 文明小博客 - 厦门网
启悟中学2011级初一4班 - 班级圈圈 - 成员 - 文明小博客 - 厦门网
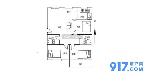
同安启悟中学周边 阳翟小区 南北朝向3房 公摊小 使用面积大-厦门二手房-厦门917房产网
南通市新一届村 社区 妇联班子 履新启航六件事 发布
宝鸡市第十届文化旅游节 第十四届扶风槐花.蜜蜂节启动仪式采风花絮
如若转载,请注明出处:http://www.xmqwzx.com/product/list-5.html